戻る

★閑静な住宅地  広々敷地 

物件概要
所在地 姫路市井ノ口 価格 800万円
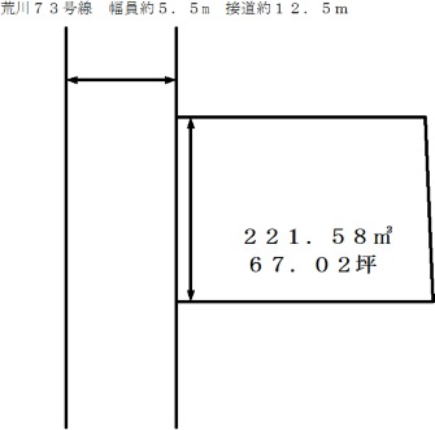
土地面積 221.58u 現況 更 地
坪単価 12万円 用途地域 第2種低層住居専用地域
都市計画 市街化区域 建ぺい率 60%
取引態様 一般 容積率 150%
建築条件なし