戻る


種目 中古戸建 所在地 姫路市飾磨区細江
土地面積 134.56u

40.70坪
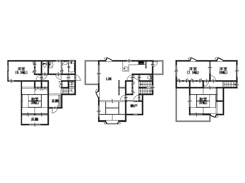
建物面積 1階 64.06u2階 59.91u
3階
52.56u
延床 176.53u
構造 鉄骨造3階建 間取り 6LDK+納戸付
都市計画区域
市街化区域 用途地域 準工業地域
取引態様 売主 駐車場 カーポート 1台有



閑静な住宅地内 積水ハウス施工物件!
キッチン(コンロ以外)・洗面台・ウォシュレット
ワイヤレステレビドアホン新品!
全面クロス・畳表替・ハウスクリーニング